Не упусти свой шанс! Последние акции от застройщиков  ▼
Объявление снято с показа Смотреть похожие объекты

Продается 4-комнатная квартира, Гагарина мкр, 6

0 Р

Балашиха г. (Балашиха гор. округ)

Гагарина мкр6

Дата публикации: 16 мая 2025

Дата обновления: 18 октября 2025

 

Этаж: 3 / 9

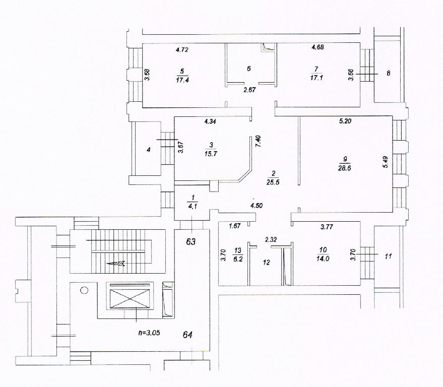
Общая: 145,7 м2

Жилая: 78,8 м2

Кухня: 14 м2

Комнаты: 15.7/17.4/17.1/28.6 м2

Балкон/лоджия: три лоджии

Лифт: лифт пассажирский

Окна: окна во двор и на улицу

Санузел: два раздельных санузла

Мусоропровод: нет

Состояние квартиры: не указано

Тип дома: монолитно-кирпичный

Год постройки: 2010

Территория: огороженная

Парковка: не указано

Статус сделки: продажа

Сделка: прямая продажа

Собственность: не указано

Основание права собственности: не указано

Описание

Продам четырехкомнатную просторную светлую квартиру, общей площадью 145,7 м2., хорошая типовая отделка. Квартира находится на 3этаже 10 этажной секции дома, 3 просторных лоджий. Кухня - 14 кв. м., площадь комнат 15,7 кв.м., 17,4 кв.м., 17,1 кв. м. и 28,6 кв.м., площадь коридора 29 кв.м., также имеется гардеробная. В квартире два просторных санузла. Кирпичный дом 2010 года постройки. В доме имеется мусоропровод, грузовой и пассажирский лифт. Во дворе детская площадка, вокруг лесопарковая зона, двор огорожен забором. На этаже всего две квартиры. Свободная продажа, возможна ипотека. Контактное лицо: Наталья [#7026744#]

Квартира на карте

ПанорамыКарта

Похожие объявления

Этаж: 3  Площадь: 145,7 м2

22 600 000 Р
Спецпредложения
Добавить объявление