Не упусти свой шанс! Последние акции от застройщиков  ▼

Продается 3-комнатная квартира, Твардовского ул., 26

12 850 000 Р

Балашиха г. (Балашиха гор. округ)

Твардовского ул.26

Дата публикации: 2 апреля 2026

Дата обновления: 2 апреля 2026

Телефон: 
Показать телефон

+7 (499) 372-92-13

Агентство:  МИЭЛЬ

Этаж: 6 / 17

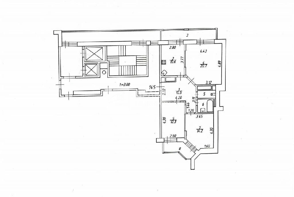
Общая: 81,9 м2

Жилая: 47,2 м2

Кухня: 11 м2

Комнаты: не указано

Балкон/лоджия: лоджия

Лифт: не указано

Окна: окна на улицу

Санузел: раздельный

Мусоропровод: не указано

Состояние квартиры: дизайнерский ремонт

Тип дома: монолитно-кирпичный

Год постройки: 2007

Территория: огороженная

Парковка: не указано

Статус сделки: продажа

Сделка: прямая продажа

Собственность: не указано

Основание права собственности: не указано

Описание

Код объекта: 2106020. Продаётся светлая, просторная 3-х комнатная квартира.Удачная планировка (распашонка).Две лоджии ( 10 м. и 6 м.).Огромный хол перед квартирой.Дом 2007 года постройки по адресу: Балашиха, улица Твардовского д. 26 Общая площадь квартиры - 81,9 кв.м.Жилая площадь - 47,2 кв.м.Площадь кухни - 11 кв.м. Транспортная доступность: Дом расположен не вдоль дороги, а второй линией. Рядом остановка общественного транспорта, можно уехать в Москву до метро Щёлковская, Новогиреево, Партизанская. На автомобиле выезд на Горьковское шоссе, до Москвы можно добраться по шоссе Энтузиастов. Двор оборудован видео наблюдением, есть шлагбаум. Инфраструктура: Рядом находятся продовольственные магазины, и множество маленьких магазинов от строительного до зоомагазина, пункты выдачи заказов, можно купить фаст-фуд, если захочется. Есть кофейня, пиццерия, недалеко другие кафе, выбор большой.Прямо во дворе сад, недалеко школа, фитнес клуб с бассейном, хорошая поликлиника, стоматология. Кроме того, вы сможете погулять в лесу, любоваться водоёмами. В шаговой доступности парк Пехорка, Берёзовая роща, бульвар Нестерова и сквер Ветеранов. Вы обязательно найдёте по душе место для отдыха, прогулок и расслабления. Высокие потолки 3 метра. Из всех комнат есть выход на лоджии ( 10 м. и 6 м.) !!!В квартире установлены кондиционеры Mitsubishi, вся техника Bosh Общее состояние квартиры хорошее, можно заехать и жить. Мебель остается вся так, что представлена на фото. Для новых жильцов на кухне остается кухонный гарнитур из массива, посудомоечная машина, холодильник, духовой шкаф, варочная панель.Ванна и санузел облицована плиткой в нейтральных тонах. Без обременений! В квартире никто не прописан.Жилье было куплено в ипотеку от застройщика. Полностью рассчитались.Продажа свободная.Документы готовы к сделки. Собственники: 1 собственника среднего возраста. С радостью покажем вам квартиру и поможем всё безопасно оформить!По данной квартире выдадим правовой сертификат с полностью проведенной юридической проверкой.

Квартира на карте

ПанорамыКарта
Спецпредложения
Добавить объявление