Не упусти свой шанс! Последние акции от застройщиков  ▼

Продается 3-комнатная квартира, Кудаковского ул., 15

7 900 000 Р

Балашиха г. (Балашиха гор. округ)

Кудаковского ул.15

Дата публикации: 8 октября 2025

Дата обновления: 13 февраля 2026

Телефон: 
Показать телефон

+7 (499) 372-92-13

Агентство:  МИЭЛЬ

Этаж: 3 / 9

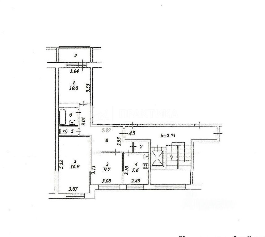
Общая: 62,3 м2

Жилая: 37,4 м2

Кухня: 10 м2

Комнаты: не указано

Балкон/лоджия: лоджия

Лифт: есть лифт

Окна: окна во двор и на улицу

Санузел: раздельный

Мусоропровод: не указано

Состояние квартиры: хорошее состояние

Тип дома: панельный

Год постройки: 1979

Территория: не указано

Парковка: не указано

Статус сделки: продажа

Сделка: альтернатива

Собственность: не указано

Основание права собственности: не указано

Описание

Код объекта: 1826365.Предлагается к продаже уютная трехкомнатная квартира в панельном доме на 3 этаже в развитом микрорайоне Балашихи. Жилье идеально подойдет для семьи, ценящей комфорт и удобство. Адрес: Россия, Московская область, Балашиха, улица Кудаковского, 15. Описание: - Год постройки: 1979.- Тип дома: панельный.- Этажность: 9 этажей.- Этаж: 3.- Количество комнат: 3 (изолированные).- Общая площадь: 62,3 кв. м.- Жилая площадь: 37,4 кв. м.- Площадь кухни: 10 кв. м.- Высота потолков: 2,7 м.- Ремонт: косметический.- Окна: на улицу и во двор.- Дополнительные удобства: наземная парковка, лоджия, раздельный санузел. Преимущества: - Выгодная цена: отличное предложение для тех, кто ищет комфортное жильё по разумной цене.- Удобное расположение: лёгкий доступ к общественному транспорту, основные магистрали недалеко.- Развитая инфраструктура: школы, детские сады, магазины всё в шаговой доступности. О квартире:Простор и планировка: Общая площадь 62,3 м2, жилая 37,4 м2. Все три комнаты изолированы, что позволяет легко организовать личное пространство для каждого члена семьи.Большая кухня: Кухня площадью 10 м2, увеличенная за счет кладовой отличное место для семейных обедов и дружеских посиделок.Высокие потолки: Высота потолков 2,7 м создает ощущение простора и воздушности, что является редкостью для панельных домов и добавляет квартире светлоты и объема.Практичные удобства: Наличие раздельного санузла, функциональная лоджия. Состояние и возможности:Квартира требует косметического ремонта, что позволяет новым владельцам воплотить свои дизайнерские идеи без необходимости перепланировки. Частично остается мебель, что может стать приятным бонусом для въезда.У квартиры один собственник больше пяти лет, обременения отсутствуют. Расположение:Дом находится внутри жилого массива, окружен озелененными территориями, что обеспечивает чистый воздух и тишину. Главное преимущество для семей школа и детский сад находятся здесь же, практически во дворе, как и множество детских площадок. Вам не придется тратить время на долгие поездки к учебным заведениям, что особенно ценно в будние дни. Так же в пешей доступности расположена облагороженная набережная с широкой прогулочной зоной.Рядом с домом множество магазинов, и крупные супермаркеты: Ашан, Перекресток, Магнит.До Москвы можно легко добраться как на личном, так и на общественном транспорте за 20-40 минут. В 5 минутах пешком от дома автостанция - конечная автобусов до метро Щелковская и Партизанская. Эта квартира отличная возможность обрести свой дом в уютном и зеленом районе Подмосковья с развитой инфраструктурой. Не упустите свой шанс! Свяжитесь с нами сегодня, чтобы узнать больше и записаться на просмотр. Работать с МИЭЛЬ выгодно и надежно:-покупателю выдается правовой сертификат, гарантирующий юридическую чистоту объекта.-возможна ипотека с особыми условиями для клиентов МИЭЛЬ от банков партеров, работаем с любыми источниками финансирования

Квартира на карте

ПанорамыКарта
Спецпредложения
Добавить объявление