Не упусти свой шанс! Последние акции от застройщиков  ▼

Продается 2-комнатная квартира, Полевая ул. (Салтыковка мкр), 2

10 990 000 Р

Балашиха г. (Балашиха гор. округ)

Полевая ул. (Салтыковка мкр)2

Дата публикации: 9 ноября 2025

Дата обновления: 15 ноября 2025

Телефон: 
Показать телефон

+7 (499) 372-92-13

Агентство:  МИЭЛЬ

Этаж: 3 / 19

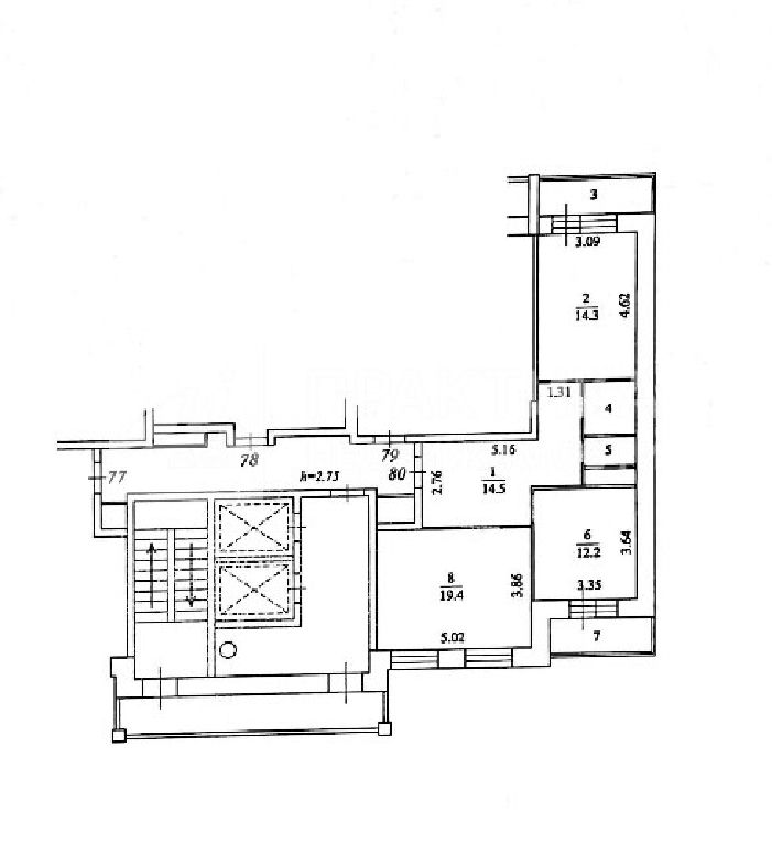
Общая: 68,6 м2

Жилая: 33,7 м2

Кухня: 12,2 м2

Комнаты: не указано

Балкон/лоджия: две лоджии

Лифт: есть лифт

Окна: окна во двор и на улицу

Санузел: раздельный

Мусоропровод: не указано

Состояние квартиры: хорошее состояние

Тип дома: кирпичный

Год постройки: 2012

Территория: не указано

Парковка: не указано

Статус сделки: продажа

Сделка: прямая продажа

Собственность: не указано

Основание права собственности: не указано

Описание

Код объекта: 1906784.Лучшее предложение района!Просторная 2-х комнатная квартира в престижном районе Балашихи.Квартира расположена на 3-м этаже/19 этажного монолитного дома.Общая площадь квартиры - 68,6 кв.м.( с учётом лоджий), раздельные комнаты - 19,4 кв.м.+ 14,3 кв.м.Просторная кухня - 12, 2 кв.м., две лоджии.В квартире косметический ремонт. Есть незаконченные элементы, что легко устраняется в течение нескольких дней. Мебель по согласованию.Все коммуникации в квартире в отличном состоянии - делали для себя.Инфраструктура рядом:поликлиника, аптеки, школы, дет.садики, магазины, спортивно-горнолыжный комплекс, теннисный центр, лесопарковая зона для прогулок и многое другое для комфортного проживания. Закрытый двор с зоной отдыха, парковкой и видеонаблюдением.Транспортная доступность:Удобный выезд на шоссе Энтузиастов и остановки общественного транспорта - обеспечивают легкую транспортную доступность на все направления Москвы и Московской области.Условия продажи:Один взрослый собственник более 10 лет. Юридически свободна. Свободная продажа.Работать с МИЭЛЬ выгодно и надежно.Нашим покупателям гарантируем индивидуальное сопровождение во всех банках с конкурентно способной процентной ставкой, а также Покупателю выдается "Правовой сертификат" гарантирующий юридическую чистоту объекта.

Квартира на карте

ПанорамыКарта
Спецпредложения
Добавить объявление